2. On Gray Water
Rest
— Rooms ! 
Facilities for Reclamation in Monte Alegre State Park, Brazil

F01 Water Filtration
2021
Critic Angelo Bucci
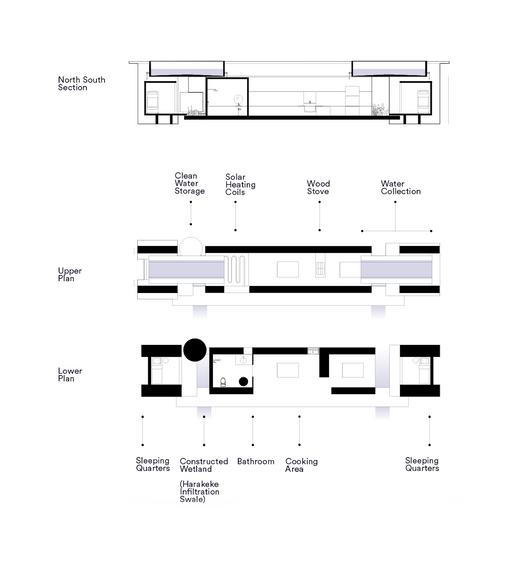
Rest—Rooms ! is a project that aims to break down the assumed divide between urban and wild, body and environment, labor and rest, and between architecture and ecosystem. Architecture is often created in order to combate the elements—a barrier to weather and water. Water is a the #1 liability in architecture. Rest—Rooms ! however proposes an architecture for water.
More on that soon, but first, an anecdote !
Starting in 1956 and over the course of 41 months, the soon to be Brazilan Capital, was built from scratch. A combined effort by Oscar Niemeyer, Lucio Costa, the urban planner and Brule Marx, the landscape designer, the project, which was proclaimed as “the city of the future” made a serious but all too common oversight. Their detailed plans did not include any instructions for waste, food scraps or other trash.
 
F02 Brazilia by Oscar Niemeyer
Enter: The Lixão da Estrutural, which translates into English as the Structural Dump. Situated, somewhat ironically, only 12 km from the brand-new Presidential palace. While in operation, the dump employed over 3,000 people who picked through the garbage for recyclable plastic, metal, paper, and other items of value to sell. By the time of its closure in 2018, the total area was just shy of 200 hectares and contained approximately 50 million tons of garbage. Together the pickers at the Lixão da Estrutural processed more than 1,000 tons of rubbish every day. When the government proposed moving the dump further out of the city, they protested against the closure — a battle they would lose.
 
The informal picking and recycling over the course of some 67 years was an economy and an ecosystem and I would argue an attempt to close a loop and to heal.
Rest—Rooms ! argues that if a city is an ecosystem then the ecosystem must now include the city. Sites of externality, waste and wetness, bodily or otherwise, are no longer something to be overlooked or concealed through design but rather the exact point in which architecture should be situated
 
 
F03 Mechanical Flows
 
 
 
F04 Of Water and Earth